Geometria Descritiva aula8 27 05 2020 YouTube

Nesta página você encontrará aulas de Geometria Descritiva. O modo de achar os quatro traços H 1, H 2, V 1, e V 2 de uma reta é muito simples. Se observarmos a figura acima veremos que o traço H, por exemplo, que, por pertencer à reta r, suas projeções H 1 e H 2 estão situadas em r 1 e r 2 respectivamente, e por pertencer ao PH, sua projeção vertical H 2 está sobre a LT, logo, H 2.
9.º ano Matemática Posições relativas de retas no plano Geometria 3.º Ciclo YouTube

Entes: pontos, retas, segmentos de reta ou semirretas. Na Épura. Adotou-se o rebatimento do P H sobre o P V em torno da L T, de modo que pontos no 1º Diedro tenham índice 1 abaixo da L T e índice 2 acima da L T. Reta Horizontal. Em Geometria Descritiva são dados nomes às retas, segundo a posição relativa de cada uma com o Referencial de.
Geometria Descritiva Tipos de Reta Geometria descritiva, Geometria, Tipos de retas

TIPOS DE RETAS: RETA HORIZONTAL.Download da Apostila: https://goo.gl/SD31oaFacebook: https://goo.gl/Une7tZInstagram: https://goo.gl/a7SI6ZTwitter: https://go.
Geometria Descritiva Alfabeto do plano

A razão entre dois segmentos de retas paralelas entre si ou colineares se mantém em projeção cilíndrica, desde que os segmentos de reta não sejam paralelos à direção de projeções. Figura 6.8. TEOREMA 3. Desse teorema, temos que, o ponto médio de um segmento de reta se projeta sobre o ponto médio da projeção do dito segmento.
Geometria Descritiva ESIDM Retas

GEOMETRIA DESCRITIVA - EXERCÍCIOS RETAS. Seja o cubo dado abaixo cujos vértices AB pertencem à LT. Pergunta-se: que tipo de reta passa pelos seguintes vértices: Com o eixo das abscissas na direção maior do papel a 11 cm da margem superior e ponto de origem a 1,5 cm da margem esquerda, resolva os exercícios de 3 a 10. 3.
Geometria descritivai 2012.2 em 2021 Geometria descritiva, Geometria, Ilustrações

resumos geometria descritiva tipos de rectas recta nível frente posição no espaço propriedades paralela ao plano horizontal inclinada relativamente ao plano.. Sombras de pontos, retas, figuras planas e sólidos; Planos tangentes às superfícies cónica e cilíndrica; Interseção entre retas e sólidos;
Geometria Descritiva Reta Aula 03 Deniezio Gomes

Nosso objetivo neste trabalho é criar um sólido geométrico que possua todos os tipos de reta. Vamos construir uma maquete física ou virtual do sólido na caix.
Geometria Descritiva jpprimo Ponto Reta Plano (intersecções com os bissectores)

1.1. Geometria Descritiva 1.2. Tipos de projeção 1.3. Sistemas de representação Relembrar noções essenciais de Geometria no Espaço: o Ponto o Confrontar Reta - Posição relativa de duas retas: complanares (paralelas ou concorrentes) não complanares (enviesadas). o Plano - Posição relativa de retas e de planos:
Geometria Descritiva Projeção e Determinação da Reta YouTube

Tipos de Retas: RETA DE TOPODownload da Apostila: https://goo.gl/7yYfrVNosso Blog: http://goo.gl/erm90PFacebook Page: https://goo.gl/SY1SeGPinterest: http:/.
Geometria Descritiva Pontos Notáveis de uma RetaTraço PT1 YouTube

Mostramos em Épura e em Perspectiva os 7 tipos de Retas!Gostou da aula?! INSCRIÇÃO 🎯 → SININHO 🔔 → JOINHA 👍 → Muito obrigado! 😃🙏Dedicamos esta Vídeo Aul.
Geometria Descritiva planos

Estudo da reta. Uma reta estará bem determinada no espaço se forem conhecidas, em épura, suas projeções horizontal e vertical, exceção feita à reta de perfil, como veremos adiante. Pertinência de um ponto a uma reta: se um ponto pertence a uma reta, suas projeções pertencerão às projeções de mesmo nome da reta (P1 em r1 e P2 em r2).
Geometria Descritiva Reta de Topo Deniezio Gomes

Tipos de Retas: RETA QUALQUERDownload da Apostila: https://goo.gl/TSPhPzFacebook: https://goo.gl/Une7tZInstagram: https://goo.gl/a7SI6ZTwitter: https://goo.g.
Para saber mais... MATEMÁTICA TIPOS DE RETAS

Começando as atividades. Dentre os muitos conteúdos fundamentais da geometria descritiva, o estudo das retas pode ser considerado um dos mais importantes. Além de definirem figuras e planos, as retas constituem um instrumento indispensável para a solução de muitos tipos de problemas. No entanto, é comum que este capítulo da disciplina.
Retas Resumos sobre parte da materia de Geometria Descritiva Algumas dicas sobr e rect as Da
Tipos de Retas: 1) Reta Qualquer: É aquela reta q que no Espaço Tridimensional - Espaço Euclidiano R³ com pontos M de Coordenadas M= (x, y , z) com x, y e z Números Reais - a qual intercepta os dois Planos Vertical π2 e Plano Horizontal π1 os quais formam os Diedros (os quatro lugares cujos lados são formados pelos Planos Vertical e.
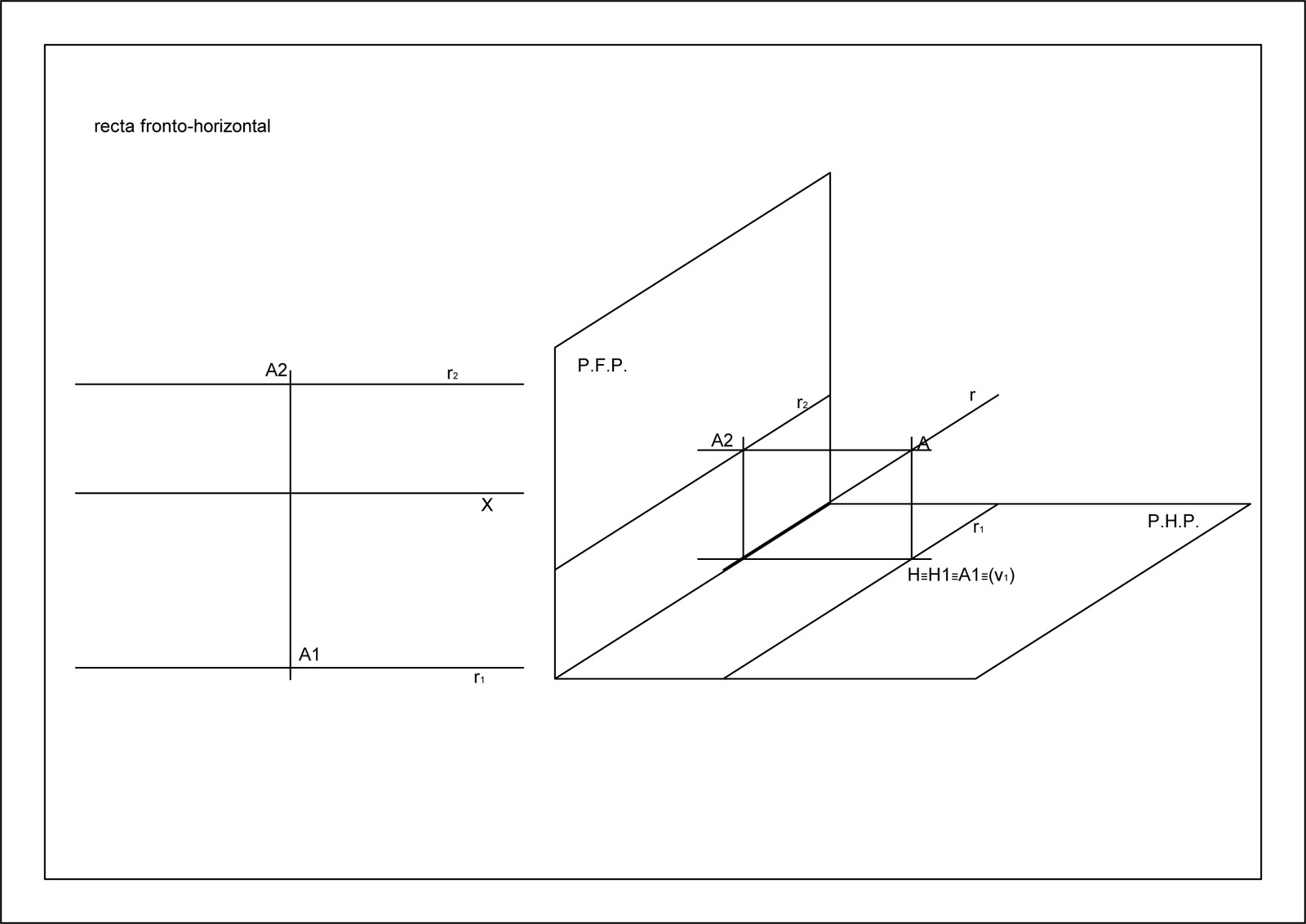
Geometria Descritiva recta de frontohorizontal

Professor de Matemática e Física. Na matemática, as retas são linhas infinitas formadas por pontos. Elas são representadas por letras minúsculas e devem ser desenhadas com setas para os dois lados, indicando que não possuem fim. Já os pontos da reta são indicados por letras maiúsculas. Note que as retas podem ser utilizadas tanto na.
Geometria Descritiva Reta Exercícios Resolvidos (1/4) YouTube

Resumo . Maria Bernardete Barison apresenta o ESTUDO DA RETA em Geometria Descritiva. Geométrica vol.2 n.5a. 2007 7 TRAÇOS DE UMA RETA - COMO ENCONTRAR O modo de achar os quatro traços H1, H2, V1, e V 2 de uma reta é muito simples. Se observarmos a figura acima veremos que o traço H, por exemplo, que, por